
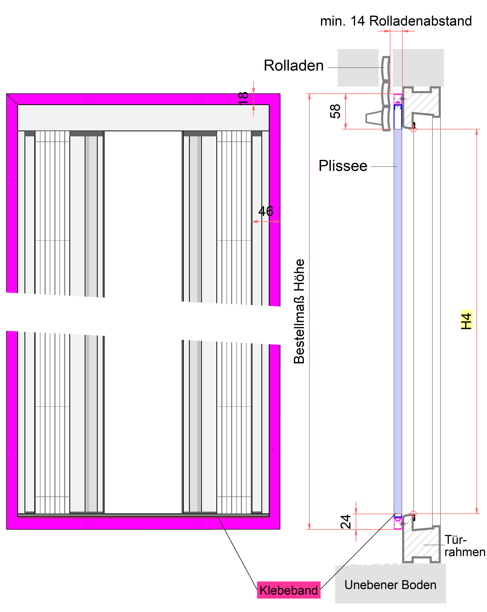
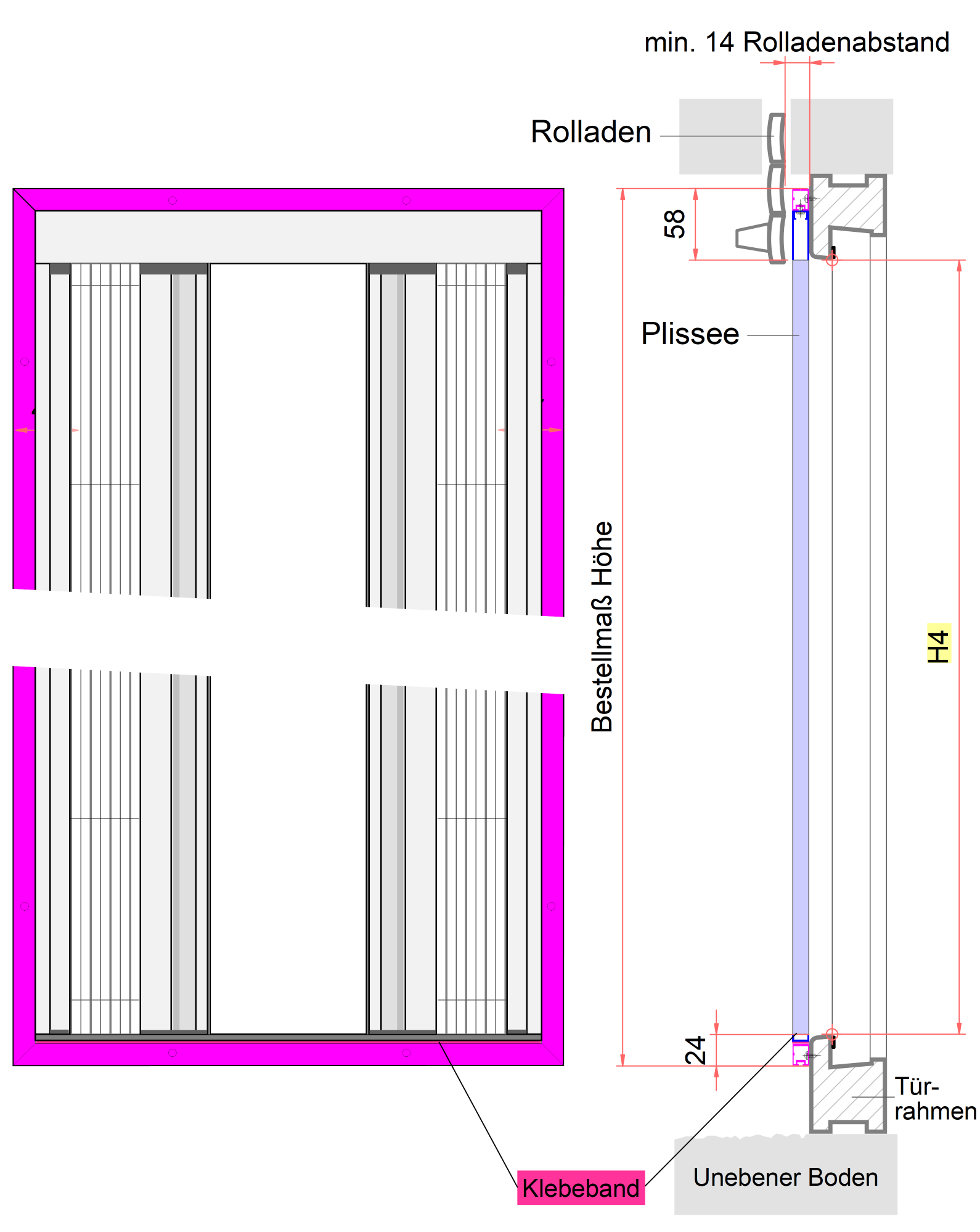
Messen Sie vom Fensterrahmen bis zum Rolladenpanzer.
Plissee-Insektenschutz, geeignet für Montage hinter dem Rolladen
Konfigurierbar in folgenden Rahmenfarben:

Dieses Produkt ist nicht kompatibel!
Bitte kontaktieren Sie unseren Kundenservice
Wichtig!!
Wählen sie den Zusatzwinkel unter dem Punkt "Zusatzoptionen" aus und beachten Sie die Aufmaßzeichnung Mit Zusatzwinkel!




















Bitte unbedingt Rolladenabstand prüfen! Min. 14 mm erforderlich (Bautiefe-Plissee= 13 mm)



Die Bodenschiene muss bei normaler Abschrägung nicht unterlegt werden, eine leichte Schrägstellung beeinträchtigt die Funktion des Plissees nicht.

Spezial-Montage bei vorspringender Schwelle:
Bei manchen Türen hat man eine Alu-Kantenschutz-Schwelle, die gegenüber dem Türrahmen 3 - 5 mm vorspringt. Eine Montage vor dieser Schwelle kann dazu führen, das der Rolladenabstand nich mehr ausreicht, da der Vorsprung zu der Dicke des Plissees (13 mm) dazukommt. In diesem Fall kann ein Zusatzwinkel bestellt werden, mit dem direkt auf der Türschwelle eine um 10 mm verbreiterte Montagefläche für die Bodenschiene geschaffen wird. Bitte beachten Sie:


